Pri rekonštrukciách nehnuteľností predstavuje podlahové vykurovanie často výzvu, najmä kvôli obmedzenej stavebnej výške. Jej prílišné navýšenie by totiž mohlo brániť otváraniu dverí napríklad do susednej miestnosti či na terasu.
Porovnanie rôznych typov podlahového vykurovania
Jednotlivé typy podlahového vykurovania sa okrem technológie a spôsobu inštalácie (suchý a mokrý proces) líšia aj hrúbkou celého systému.
Inštalácia podlahového vykurovania po poter (mokrý proces)
Výhodou tohto typu inštalácie je, že využívate akumulačné vlastnosti poteru, ktorý dlhšie drží teplo. K samotnej vykurovacej sústave treba pripočítať hrúbku poteru, teda pri betóne 5 cm a pri anhydrite 4 cm. Tento druh montáže je vhodný pri novostavbách alebo pri rozsiahlejších rekonštrukciách, keďže sa na neho aplikuje poter.
Teplovodné podlahové vykurovanie zaberá v mokrom procese teda pod betónový alebo anhydridový poter asi 15-20 mm. Dôležitým parametrom je vzdialenosť jednotlivých trubiek teplovodného vykurovania.
Hrúbka systému s vykurovacími fóliami TRIVOLT EVO pod poter je 2 mm. Keďže vykurovacia fólia vytvára teplo v mieste ohrevu, čím sa predchádza tepelným stratám pri prenose energie a vzniku studených miest, ktoré spôsobujú plesne. Na rozdiel od iných typov vykurovania majú rýchly nábeh kúrenia - teplo dodávajú hneď po zapnutí.
V mokrom procese môžete priamo pod dlažbu inštalovať vykurovacie rohože s hrúbkou 5 mm, ktoré sa zatierajú do flexibilného lepidla. Podklad betón.

Inštalácia podlahového vykurovania v suchom procese
Teplovodné podlahové vykurovanie sa inštaluje v suchom procese len výnimočne. Pri tomto type inštalácie je ideálnym riešením vykurovacia infra fólia TRIVOLT ONE alebo TRIVOLT EVO. Môžete ju použiť pod rôzne druhy plávajúcich podláh ako laminát, SPC, kompozit či vinyl. Pri inštalácii pod plávajúcu podlahu zaberie vykurovací systém 7 mm.
Inštalácia je rýchla a jednoduchá. Šikovní domáci majstri ju zvládnu urobiť aj sami svojpomocne, pričom pripojenie vykurovacej fólie do obvodu môže vykonať iba autorizovaný elektrikár s vyhláškou. Tento typ montáže je ideálnym riešením pri rekonštrukciách, kedy je dôležité zachovať stavebnú výšku podlahy a zbytočne ju nenavyšovať, lebo by ste napríklad neotvorili dvere.
Časozber: Vykurovacia fólia pod plávajúcu podlahu - Ako na to!
Výhody elektrického podlahového vykurovania
Elektrické podlahové vykurovanie fóliou sa vyznačuje úspornosťou, bezúdržbovosťou a bezporuchovosťou. Rýchlo a jednoducho sa inštaluje. Celý vykurovací systém sa navyše vyznačuje nízkou stavebnou výškou.
Keďže vykurovanie neprodukuje CO2, patrí k ekologickým typom kúrenia. Každého určite potešia tiež nízke realizačné náklady na celý vykurovací systém, ktoré sú o 60-70 % lacnejšie ako pri iných typoch teplovodného podlahového vykurovania.
Tento systém vykurovania sa používa v Japonsku, v Kórei i v severských krajinách už desiatky rokov.
Riešenie problémov s vykurovacími telesami v panelových domoch
Pri rekonštrukciách starých budov sa často stretávame s problémami, ako sú studené radiátory v niektorých miestnostiach. V bytovom dome s viacerými vchodmi a staršími obyvateľmi môže byť zabezpečenie kvalifikovanej údržby nákladné.
Diagnostika problému
Prvým krokom pri riešení problému je kontrola uzatváracích ventilov na radiátoroch a obtokov, ktoré by mali byť otvorené. Následne sa kontrolujú odvzdušňovacie ventily (tzv. Mayevského kohútiky), či v systéme cirkuluje voda.
Na zistenie prítomnosti chladiacej kvapaliny v systéme je potrebné navštíviť suterén domu a identifikovať prívodné a spätné potrubie. Ak sú obe potrubia studené, aj keď v iných častiach domu je teplo, problémom môže byť zanesenie vzduchu v horných poschodiach.

Odvzdušnenie radiátorov
V domoch bez technického poschodia sa chladiaca kvapalina dodáva zospodu. V prípade starších liatinových radiátorov, ktoré sú často inštalované na horných poschodiach, môže dôjsť k nahromadeniu vzduchu.
Na odstránenie vzduchu z radiátora sa používa Mayevského žeriav (alebo jeho prototyp) zabudovaný do uzáveru radiátora. Proces spočíva v postupnom uvoľňovaní vzduchu, kým nezačne prúdiť voda, následne sa ventil opäť uzavrie.
Po odvzušnení radiátorov v dvoch miestnostiach sa v byte citeľne oteplilo, hoci teplota chladiacej kvapaliny nebola optimálna.
Odporúčanie: Pred začiatkom vykurovacej sezóny je vhodné dohodnúť sa so susedmi na horných poschodiach a spoločne vykonať odvzdušnenie stúpačiek.
Všeobecné informácie o panelových radiátoroch
Panelové vykurovacie teleso patrí ku konvekčným typom ohrievačov, ktoré ohrievajú miestnosť prúdením vzduchu. Tieto radiátory sa často nazývajú konvektory.
Na zvýšenie konvekcie sa vyrábajú jednopanelové, dvojpanelové a trojpanelové radiátory. Panely sú vzájomne prepojené zvislými rúrami a chránené krytmi. Výrobcovia ponúkajú panely v rôznych veľkostiach, s typickými výškami 300 - 900 mm a hĺbkami od 60 do 160 mm.
Panely sa vyznačujú nízkou hmotnosťou a vďaka svojej konštrukcii majú nízku tepelnú zotrvačnosť, čo znamená, že sa rýchlo zohrejú a rýchlo ochladia.
Ako skryť vykurovacie potrubie
Pri riešení vykurovacieho systému v kúpeľni je dôležité použiť materiály odolné voči vlhkosti. Potrubia je možné schovať do steny alebo vyrobiť pre ne skrinku.
Skrytie potrubia v kúpeľni
Jedným zo spôsobov je skrytie vykurovacích potrubí pod soklovou doskou. Konštrukcia rámu a opláštenia je podobná ako pri iných riešeniach, avšak je potrebné použiť pozinkované profily a sadrokartón odolný proti vlhkosti.
Dlaždice sa lepia na vrch opláštenia. Veľkosť rámu by mala byť prispôsobená veľkosti dlaždíc. Rohy a rezy je možné prekryť špeciálnymi rohmi.
Jeden z panelov skrinky môže byť vyrobený ako odnímateľný, napríklad na magnetoch, aby sa zabezzpečil prístup ku komunikáciám.
Alternatívou sú špeciálne plastové soklové lišty, ktoré môžu zakryť potrubia vedúce pozdĺž steny.
Dekorácia potrubia
Ak iné metódy nevyhovujú, potrubia je možné ozdobiť. Môžu sa natrieť vo farbe interiéru, pričom je dôležité použiť farbu s mechanickou odolnosťou, tepelnou stálosťou a netoxicitou.
Na dekoráciu sa dá použiť aj jutové alebo konopné lano, bambus, alebo dokonca vetvy a listy.
Skrytie potrubia v súkromnom dome pomocou krabice
Pri už nainštalovanom vykurovacom systéme je skrinka dobrým riešením. Opláštenie je možné vyrobiť z plastu, sadrokartónu alebo dreva.
Pred prácou je potrebné skontrolovať integritu komunikácií. Na výrobu rámu sa používajú kovové profily a samorezné skrutky s hmoždinkami. Je dôležité dodržať dostatočnú vzdialenosť medzi rúrami a stenami krabice (optimálne 3 cm).
Po vytvorení rámu sa začína s opláštením, pričom sa začína od bočných častí a postupuje sa smerom k stredu.

Batéria v stene: výhody a nevýhody
Hlavným problémom batérií zabudovaných v stene je nemožnosť ich vypnutia počas vykurovacej sezóny. S pribúdajúcim vekom budov sa zvyšuje riziko poškodenia starých potrubí.
V domoch s "otvorenými" vykurovacími rúrami je ich výmena jednoduchšia. Pri "zamurovaných" batériách je proces zložitejší a často vyžaduje objednanie projektu reorganizácie vykurovacieho systému a získanie potrebných povolení.
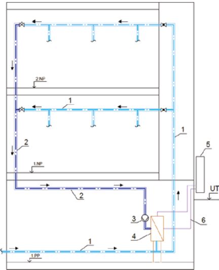
Schéma vykurovania bytového domu
Vo väčšine moderných domov sa používa centralizovaný vykurovací systém s jedným potrubím. Schéma vykurovania 5-podlažnej budovy je zvyčajne tvorená jednou stúpačkou, do ktorej je chladivo dodávané zospodu alebo zhora.
V závislosti od umiestnenia prívodného potrubia sa mení aj smer cirkulácie chladiacej kvapaliny. Ak je prívodné potrubie v suteréne, chladivo prúdi nahor a vracia sa dole. Ak je prívod v podkroví, chladivo prúdi smerom nadol.

Zariadenie centralizovaného vykurovacieho systému
Bytový dom je pripojený k vykurovacej sieti z kotolne alebo kogenerácie. Na vstupy do budovy sú inštalované prívodné ventily, za ktorými nasledujú zberače bahna, ktoré zachytávajú nečistoty.
Ďalej sú v okruhu domu umiestnené výmenníky tepla (vykurovacie výťahy), ktoré ochladzujú prehriatu vodu z teplárne na požadovanú teplotu pre vykurovacie zariadenia.
Vykurovací výťah funguje na princípe zmiešavania horúcej vody z teplárne so studenou vodou zo spiatočky, čím sa reguluje teplota.
Regulácia teploty sa dosahuje zmenou priemeru dýzy vo výťahu. Za výťahom sa nachádzajú domové ventily, ktoré umožňujú pripojenie a odpojenie vykurovacieho okruhu budovy.
Systém tiež obsahuje výpustné ventily na obtok alebo odvodnenie.
Typy cirkulácie vody v systéme
V bytových domoch sa zvyčajne používa jednorúrová verzia dodávky chladiacej kvapaliny s horným alebo dolným plnením. Prívodné a spätné potrubia môžu byť vedené v suteréne, podkroví alebo technickom podlaží.
Dolné plnenie: Každá dvojica stúpačiek je spojená pomocou prepojok na najvyššom poschodí alebo v podkroví. V hornej časti prieduchu je nainštalovaný odvzdušňovací ventil. Nevýhodou je nutnosť odvzdušnenia každej prepážky po vypustení vody.
Horné plnenie: V tomto systéme je na najvyššom poschodí nainštalovaná expanzná nádrž s odvzdušňovacím ventilom a samostatné ventily na odpojenie každej stúpačky.
Pri správnom sklone pri kladení náplne sa voda zo systému pri otvorení vetracích otvorov rýchlo vypustí. Teplota ohrievačov klesá s poklesom teploty vykurovacieho média, čo sa na spodných podlažiach kompenzuje zvýšením počtu článkov radiátora.
Komíny a požiarna ochrana
Pri vykurovaní vzniká v každom komíne vlhkosť, najmä pri použití moderných plynových spotrebičov. Ochladzovaním spalín v komíne dochádza k tvorbe kondenzátu s obsahom škodlivín, ktorý steká po vnútornej stene.
Použitie nevhodného komína, napríklad iba murovaného, môže viesť k premoknutiu a vzniku škvŕn na stenách. Zmena vykurovacieho systému bez prispôsobenia komína môže tiež spôsobiť prevlhnutie a rozpad komína.
"Nenasiakavý" komín
Kľúčovými prvkami "nenasiakavého" komína sú tvárnica, izolácia a komínová vložka. Vnútorná vložka zabraňuje ochladzovaniu spalín, zatiaľ čo vonkajší plášť z betónových tvárnic s kanálikmi odvádza vlhkosť.
Kondenzát odteká do špeciálneho šamotového dielu pod prvou vložkou a odvádza sa do kanalizácie.
Dôležitú úlohu zohráva aj voľba prierezu komína. Príliš veľký prierez spôsobuje pomalšie prúdenie spalín a ich rýchlejšie ochladzovanie, čo vedie k väčšiemu množstvu kondenzátu.
Kvalitná komínová vložka
Lacné hliníkové vložky sú len krátkodobým riešením, pretože hliník nie je odolný voči agresívnemu kondenzátu. Ideálnou voľbou je kvalitný šamot, ktorý je vhodný pre všetky typy palív.
Komín na kľúč
Pri výbere komína je vhodné zveriť sa skúsenej firme, ktorá ponúka kompletné riešenie "na kľúč". Kvalitný komín by mal spĺňať nasledujúce požiadavky:
- Vhodný pre všetky typy palív
- Vhodný pre vysoko účinné kotly s teplotou spalín nad 30°C
- Odolný proti vyhoreniu
- Odolný proti vlhkosti
- Kyselinovzdorný
- Bezpečný v prípade samovoľného vznietenia sadzí
Univerzálny komín s týmito vlastnosťami má zvyčajne záruku tridsať rokov.
Čoho sa vyvarovať pri výbere a inštalácii komína?
- Šetrenie na nesprávnom mieste, napr. vynechanie dôležitých prvkov.
- Nesprávna montáž, napr. zasypanie šamotovej vložky materiálom, ktorý obmedzuje jej pohyb.
- Nesprávne projektovanie, napr. umiestnenie komína pri obvodovej stene, kde dochádza k jeho ochladzovaniu a vlhnutiu.
Najlepšia poloha komína je uprostred domu.
Inštalačné zóny elektroinštalácie
Inštalačné zóny sú definované pásma v stavebných konštrukciách, v ktorých sa vedú elektrické vedenia a osádzajú prístroje (zásuvky, vypínače, dátové zásuvky a pod.).
Základný princíp: Vedenia sa ukladajú zvislo a vodorovne v určených pásoch. V týchto pásmach môžete pri budúcich zásahoch očakávať prítomnosť káblov.
Tip z praxe: Po dokončení hrubej elektroinštalácie si nechajte od elektrikára zjednodušenú schému inštalačných zón.
V reálnej stavbe sa často stretávajú rozvody vody, odpadu, kúrenia, vzduchotechniky a elektro. Je ideálne, ak sú trasy vody a odpadu známe, aby elektrikár mohol prispôsobiť zóny.
Zvislé a vodorovné inštalačné zóny
- Zvislé zóny: Vedú od podlahy po strop, zvyčajne široké 10 - 20 cm. Prvok (zásuvka, vypínač) je napojený káblom, ktorý ide kolmo hore alebo dole.
- Vodorovné zóny: Hlavné trasy sa vedú z rozvádzača väčšinou v hornej alebo dolnej vodorovnej zóne a odtiaľ zvislými pásmi k jednotlivým zásuvkám a vypínačom.
Šikmé vedenie káblov medzi zásuvkami alebo vypínačmi sa pri bytových a domových elektroinštaláciách považuje za nevhodné riešenie.
Odporúčanie z praxe: Pri rekonštrukciách starých bytov, kde sa často stretnete so „šikmými skratkami“ vedení, je pri nových rozvodoch výhodné dodržiavať systémové vedenie - zvislo a vodorovne v zónach.
Výšky zásuviek a vypínačov
Konkrétne výšky závisia od projektu, typu priestoru a požiadaviek užívateľa. Bežné hodnoty sú:
- Zásuvky: približne 20 - 30 cm nad hotovou podlahou.
- Vypínače: vo výške 90 - 120 cm nad podlahou, často okolo 105 - 115 cm.
Špecifiká kuchyne a kúpeľne
- Kuchyňa: Kombinuje elektroinštaláciu, vodu, odpad, digestor, vstavané spotrebiče. Zásuvky nad pracovnou doskou sa zvyčajne umiestňujú približne 110 - 120 cm nad podlahou.
- Kúpeľňa: Platia prísnejšie pravidlá. Priestor sa delí na zóny podľa vzdialenosti od vane a sprchového kúta. Kúpeľňa patrí medzi priestory so zvýšeným rizikom úrazu elektrickým prúdom.

Kvalitná elektroinštalácia
Pri dodržaní inštalačných zón je rozumné mať elektroinštaláciu zdokumentovanú. V prípade starších inštalácií sa často inštalačné zóny nedodržiavali, takže káble môžu byť vedené neprehľadne.
Pri rekonštrukcii starej elektroinštalácie je vhodné prizvať elektrikára už v štádiu plánovania, aby navrhol nové rozvody podľa aktuálnych noriem a budúcich požiadaviek.
tags: #vykurovanie #prieraz #v #stene #vyska